欢迎您,请 登录 或 马上註冊

增城视窗 首页 资讯 增城概述 查看内容
新闻热点 增城概述 政务文宣 人物事迹 文学作品 吃喝玩乐 风土人情 千奇百怪 历史文化 观点社论 便民服务 商务情报

增城区7宗宅地拍卖大战来袭!总建筑面积高达122万平 起拍总价达132亿元

19-7-1 21:11| 发布者: lujunfei| 查看: 1607| 评论: 0|来自: 凤凰网房产

摘要: 2019年7月土拍大战来袭!7月广州预计将出让18宗经营性用地,建设用地面积总计123.6万平,起拍总价合计240亿元。最大的亮点莫过于,9宗宅地均位于现在“大热”的增城和南沙,其中,7宗位于增城,2宗位于南沙灵山岛尖 ...
2019年7月土拍大战来袭!7月广州预计将出让18宗经营性用地,建设用地面积总计123.6万平,起拍总价合计240亿元。最大的亮点莫过于,9宗宅地均位于现在“大热”的增城和南沙,其中,7宗位于增城,2宗位于南沙灵山岛尖。7月增城狂卖7宗宅地,分别位于永宁、增江荔城石滩朱村,可建设用地面积达40.9万平,总建筑面积高达122万平,起拍总价达132.7亿元。

增城区7宗宅地拍卖大战来袭!总建筑面积高达122万平 起拍总价达132亿元

增城区永宁街叶岭村地块

地块编号:83101231a19034号;宗地坐落:增城区永宁街叶岭村;土地用途:二类居住用地(r2);宗地面积:133652.62平方米(可建设用地面积133652.62平方米);容积率≤3.0;建筑面积:≤400957.86平方米;挂牌起始价:400960万元;起始楼面价:10000元/平方米。

本次出让地块采用“竞价+竞自持+摇号”的拍卖方式,最高限制地价为581392万元,折合楼面价约14500元/平方米。该地块曾在2018年9月挂牌,后因故终止出让。原先分a、b、c三块宅地,如今则是整体出让。值得关注的是,该地块为为今年增城区计划供应占地面积最大的商 住地。本次挂牌成交价包括173000平方米地下车库及设备用房的土地出让金,若地下车库及设备用房的实测面积超过173000平方米,超出部分则按相关规定补缴出让金。

根据蓝皮书介绍,该地块位于增城区永宁街新新公路叶岭村路段,临近广惠高速永和站出入口,距广州城区在 30 分钟车程内,坐拥广州东 1 小时生活圈,交通十分便捷。公共交通方面,地块距离21号线中新站约5公里,距新白广支线荔湖站(预计2020年开通)约3公里,需靠公交接驳。

目前地块周边已聚集有金地荔湖城、金地香山湖、金地公园上城等高端商 住楼盘, 更有广外增城外国语学校等优质教育资源,亦有荔湖高尔夫球场、森林公园可供健身休闲。目前片区优质二手房源与一手项目价格差距不大,其中在售的金地香山湖、合景誉山国际均价在1.8-1.9万元/平方米左右。二手房金地荔湖城、金地公园上城价格在1.4-1.7万/平左右。

增城区7宗宅地拍卖大战来袭!总建筑面积高达122万平 起拍总价达132亿元

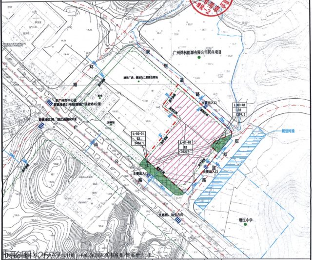
●增城区增江街陆村村地块

地块编号:83002206a19037号;土地用途:二类居住用地(r2);宗地面积:39277平方米(可建设用地面积39277平方米);容积率≤3.0;建筑面积:≤117831平方米;挂牌起始价:111940万元;起拍楼面价:10010元/平方米(扣除6000平安置房面积)。

根据地块出让条件,该宗地需配建6000平的政府拆迁安置房。扣除配建安置房面积后,起拍楼面价约10010元/平方米。此外,本次挂牌成交价包括35000平方米地下车库及设备用房的土地出让金,若地下车库及设备用房的实测面积超过35000平方米,超出部分则按相关规定补缴出让金。地块设定最高限制地价为162313万元,最高楼面价约14514元/平方米。

增城区7宗宅地拍卖大战来袭!总建筑面积高达122万平 起拍总价达132亿元

●增城区荔城街庆丰村地块

地块编号:83001220a19135号;土地用途:二类居住用地(r2);宗地面积:27799.67平方米(可建设用地面积27799.67平方米);容积率≤2.6;建筑面积:≤72279.22平方米;挂牌起始价:100000万元;起拍楼面价:13835元/平方米。

该宗地成交价包括31000平方米地下车库及设备用房的土地出让金,若地下车库及设备用房的实测面积超过31000平方米,超出部分则按相关规定补缴出让金。该宗地设置最高限制地价为130102万元,最高楼面价约18000元/平方米。

12下一页

路过

雷人

握手

鲜花

鸡蛋

最新评论

  • 以广州市增城区赖际熙为首的客籍精英首倡成
  • 广州市增城区正果镇光明小学教师单洁丽 用
  • 增城有段古:西罗乡成立了广州首个中国共产
  • 广州市增城区抗日游击武装:广东人民抗日游
  • 广州市增城区香蕉产量的气象预报模型 为乡
增城论坛|新塘地图|派潭镇|石滩镇|中新镇|荔城街|崔与之|增城绿道|增城丝苗米
返回顶部